We deliver according to your needs.
4 INSTALLATION OPTIONS
Process organised according to your needs: from elements only to “keys to the house (in the EU)”
QUICK JIT DELIVERY
No matter the number of units, delivery time for all elements is 8-12 weeks.
TAILORED OPTIONS
Design according to the needs and budget: CLT or wood frame, screw piles or slab foundation, standard add-ons etc.
Installation stages and options
We offer flexibility for delivery (installation stages):
- ELEMENTS only with local installation
- STRUCTURAL: All exterior works delivered by ODYL + local technical interior works.
- TECHNICAL: Structural and technical installation delivered by ODYL + local interior finishing works.
- “KEYS TO THE HOUSE”: All works delivered by ODYL installation team


Production capacity
8-12 weeks for structural elements.
- Precision engineered and machine cut
- Finished with biocide free oils at factories
All building and finishing materials are stock based from certified producers and available across the EU.

Installation capacity
If installation is organised by ODYL, it is done by different teams who specialise on different stages (structural, technical, finishes).
Installation schedule is done based on the number of houses delivered at the same time (if the location is the same). For example*:
*Exact time depends on the final solutions and add-ons
- 1 house = 20 working days from foundation to “keys to the house”
- 2 houses = 32 working days from foundation to “keys to the house”
- 4 houses = 60 working days from foundation to “keys to the house”


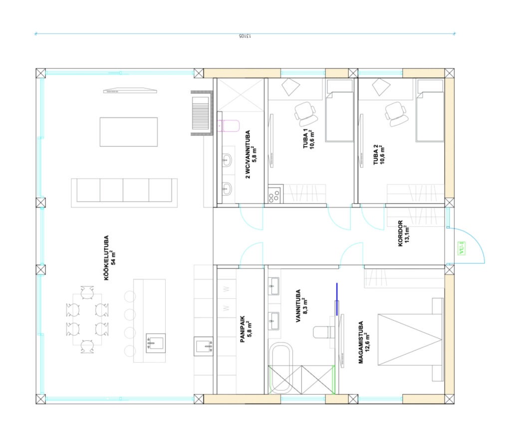
Tailor made floor plans
We can tailor make ODYL designs in any way as long as the core design and connections stay the same (40m2, 2-bedroom, 3-bedroom).
Knowing exact criteria is important as every change does require some re-projecting.

Local representation
We are looking for local representatives across the EU. Please get in touch with us if you would like to become our partner and manage local enquiries and projects.
